Leave a Message

Thank you for your message. We will be in touch with you shortly.

Dan Urbach

Luxury Property Specialist

Luxury Property Specialist

Request Info

887 Chattanooga Avenue

887 Chattanooga Avenue, Pacific Palisades, CA 90272

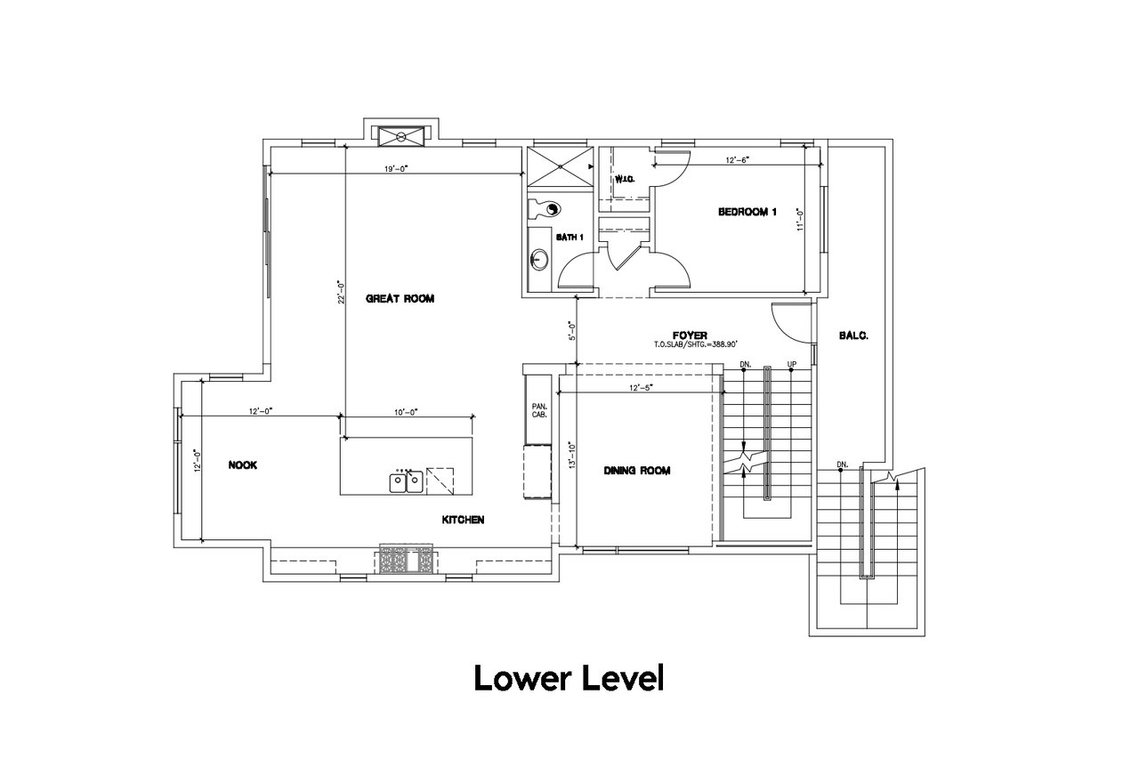
This offering includes Ready-to-Issue (RTI) plans by Scala Architects for a stunning 4-bed, 4-bath, 2,599-SF home in the coveted Marquez Knolls of Pacific Palisades. Thoughtfully designed to maximize natural light and surrounding vistas, the plans feature ocean views from the upper level. The first floor will center on an open-concept great room that will seamlessly connect to the kitchen and dining areas - all opening to a backyard. A guest suite and formal dining room will complete the main level. Three en-suite bedrooms are planned upstairs, including a spacious primary retreat with a spa-inspired bath, walk-in closet, and private balcony overlooking the backyard. Just moments from Palisades Village, the beach, and local hiking trails. Be a part of the neighborhood’s exciting rebuild on this special lot. Phase 1 EPA remediation and Phase 2 debris removal by the Army Corps of Engineers are complete. Property falls within Tract 9300.

image

Schedule a Showing

We would love to show you our beautiful property. Please select your preferred date and time below. An agent will be in touch shortly to confirm your appointment.

Schedule a Showing

We would love to show you our beautiful property. Please select your preferred date and time below. An agent will be in touch shortly to confirm your appointment.
Thank you for your interest in 887 Chattanooga Avenue, Pacific Palisades, CA 90272. We are reviewing your request and will be in touch shortly!

Features & Amenities

Area & Lot

Status For Sale
LOT SIZE 5,190 Sq.Ft.
Type Land
Neighborhood Pacific Palisades

Financial

SALES PRICE $1,100,000

Mortgage Calculator

Estimate your monthly mortgage payment, including the principal and interest, property taxes, and HOA. Adjust the values to generate a more accurate rate.
All estimates are provided for informational purposes only. Actual amounts may vary.
$0,000 Your Payment 20 15 65
$0,000 Your Payment

About the Neighborhood

Pacific Palisades

A bespoke coastal village with a close-knit community.
Pacific Palisades

Follow Us On Instagram